Diese derzeit vermietete Doppelhaushälfte wartet nur darauf, von Dir entdeckt zu werden. Erbaut im Jahr 2004 auf einem Erbpachtgrundstück, präsentiert sich das Haus in einem gepflegten Zustand und bietet alles, was Dein Herz begehrt.
Mit einer großzügigen Wohnfläche von ca. 165 m² auf zwei Etagen ist genug Platz für Dich und Deine Familie. Die vier Schlafzimmer bieten ausreichend Raum für Ruhe und Entspannung, während das modern gestaltete Badezimmer für einen komfortablen Start in den Tag sorgt. Das gemütliche Wohnzimmer lädt nicht nur zum Entspannen ein, sondern kann auch mit einem idyllischen Kaminofen ausgestattet werden, der an kühlen Abenden für eine wohlige Atmosphäre sorgt.
Die überdachte Terrasse ist perfekt für sonnige Tage und gesellige Abende im Freien mit einem unverbauten Blick ins Grüne. Entspanne Dich auf dem ca. 378 m² großen Grundstück und genieße einfach die Natur. Zudem steht Dir noch eine praktische Nutzfläche von ca. 18 m² zur Verfügung, ideal für extra Stauraum oder als Hobbyraum.
Diese Doppelhaushälfte ist mehr als nur ein Haus – es ist ein Ort, an dem Du Deine Träume verwirklichen kannst. Worauf wartest Du noch? Lass Dich von diesem einmaligen Angebot begeistern und erlebe Dein neues Kapitel in Essen (Oldenburg) / Hülsenmoor!
Technische Angaben
- ImmoNr
- 2025-00068
Kategorie
- Objektart
- Haus
- Objekttyp
- Doppelhaushälfte
- Nutzungsart
- Wohnen
- Vermarktungsart
- Kauf
Geografische Angaben
- PLZ
- 49632
- Ort
- Essen (Oldenburg) / Hülsenmoor
- Land
- Deutschland
Flächen
- Wohnfläche
- ca. 165 m²
- Nutzfläche
- ca. 18 m²
- Grundstücksgröße
- ca. 378 m²
- Anzahl Zimmer
- 5
- Anzahl Schlafzimmer
- 4
- Anzahl Badezimmer
- 1
- Anzahl sep. WC
- 1
- Anzahl Terrassen
- 1
Ausstattung
Terrasse
- Etagenzahl
- 2
- Stellplätze
- 1 Freiplatz, 1 Garage
Preise
- Kaufpreis
- 269.900,00 €
Beschreibung
Ausstattung
Raumgrößen:
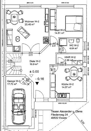
EG:
Wohnzimmer: 24,46 qm
Küche: 14,97 qm
Gäste: 14,51 qm
HWR: 3,96 qm
Gäste-WC mit Dusche: 4,64 qm
Flur: 18,90 qm
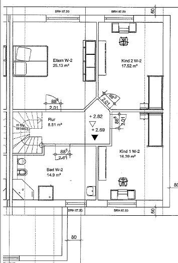
DG:
Zimmer 1: 16,39 qm
Zimmer 2: 17,52 qm
Zimmer 3: 25,13 qm
Bad: 14,90 qm
Flur: 8,81 qm
EG:
Wohnzimmer: 24,46 qm
Küche: 14,97 qm
Gäste: 14,51 qm
HWR: 3,96 qm
Gäste-WC mit Dusche: 4,64 qm
Flur: 18,90 qm
DG:
Zimmer 1: 16,39 qm
Zimmer 2: 17,52 qm
Zimmer 3: 25,13 qm
Bad: 14,90 qm
Flur: 8,81 qm
Lage
Willkommen in Hülsenmoor, einem charmanten Ortsteil von Essen im schönen Oldenburger Land! Stell Dir vor, Du lebst in einer Gegend, die das Beste aus beiden Welten vereint – die Ruhe und Nähe zur Natur mit der praktischen Anbindung an das städtische Leben. Hier kannst Du wunderbar abschalten und gleichzeitig die gute Erreichbarkeit der Ortsmitte genießen. Essen bietet Dir alle wichtigen Annehmlichkeiten wie Schulen, Einkaufsmöglichkeiten und ärztliche Versorgung – perfekt für ein modernes und komfortables Leben. Entdecke die malerische Umgebung bei einem Spaziergang oder mit dem Fahrrad und lass Dich von der einladenden Atmosphäre verzaubern. Ein perfekter Ort, um anzukommen und sich wohlzufühlen!
Sonstige Angaben
• Erbpachtgrundstück (Pachtzins 374,76 Euro/Jahr)
• Erbpachtvertrag besteht noch für 77 Jahre
• Sackgassenlage
• unverbauter Blick von der Terrasse aus
Der Energieausweis ist in Vorbereitung und liegt zur Besichtigung vor.
• Erbpachtvertrag besteht noch für 77 Jahre
• Sackgassenlage
• unverbauter Blick von der Terrasse aus
Der Energieausweis ist in Vorbereitung und liegt zur Besichtigung vor.
Energieausweis
A+
< 30
A
30 – 50
B
50 – 75
C
75 – 100
D
100 – 130
E
130 – 160
F
160 – 200
G
200 – 250
H
> 250
- Baujahr lt. Energieausweis
- 2004
- Endenergieverbrauch
- 64,44 kWh/(m²a)
- Energieausweis
- Verbrauchsausweis
- Energieausweis gültig bis
- 15.09.2035
- Energieeffizienzklasse
- B
- wesentlicher Energieträger
- Gas